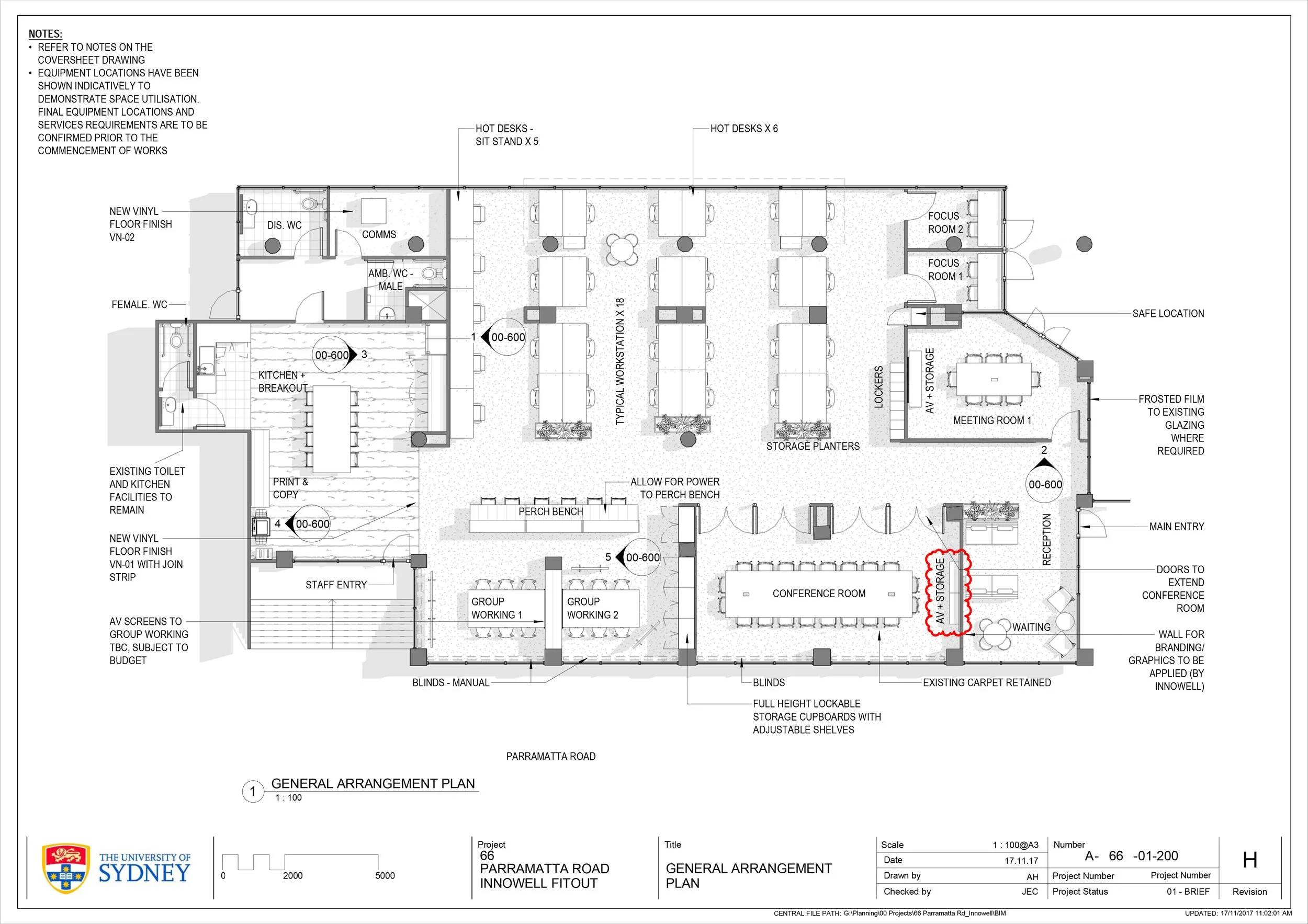
Innowell Office Fitout

Innowell office fitout was the first project I took from concept to completion. I engaged directly with the client and end user to understand the brief. I presented to the client throughout the design stages, including finishes workshops and drawing reviews

Previous
Previous

University Library

Next
Next

Kippax Street